This website works better with JavaScript
Strona główna
Odkrywaj
Pomoc
Zarejestruj się
Zaloguj się
doc
/
persagy-service-doc
Obserwuj
10
Polub
0
Forkuj
0
Pliki
Problemy
0
Oczekujące zmiany
0
Wiki
Drzewo:
7669961d7e
Gałęzie
Tagi
master
persagy-serv...
/
docs
/
dev
/
data-center
/
relations
/
problems
/
vwall_problem.md
vwall_problem.md
643 B
Historia
Czysty
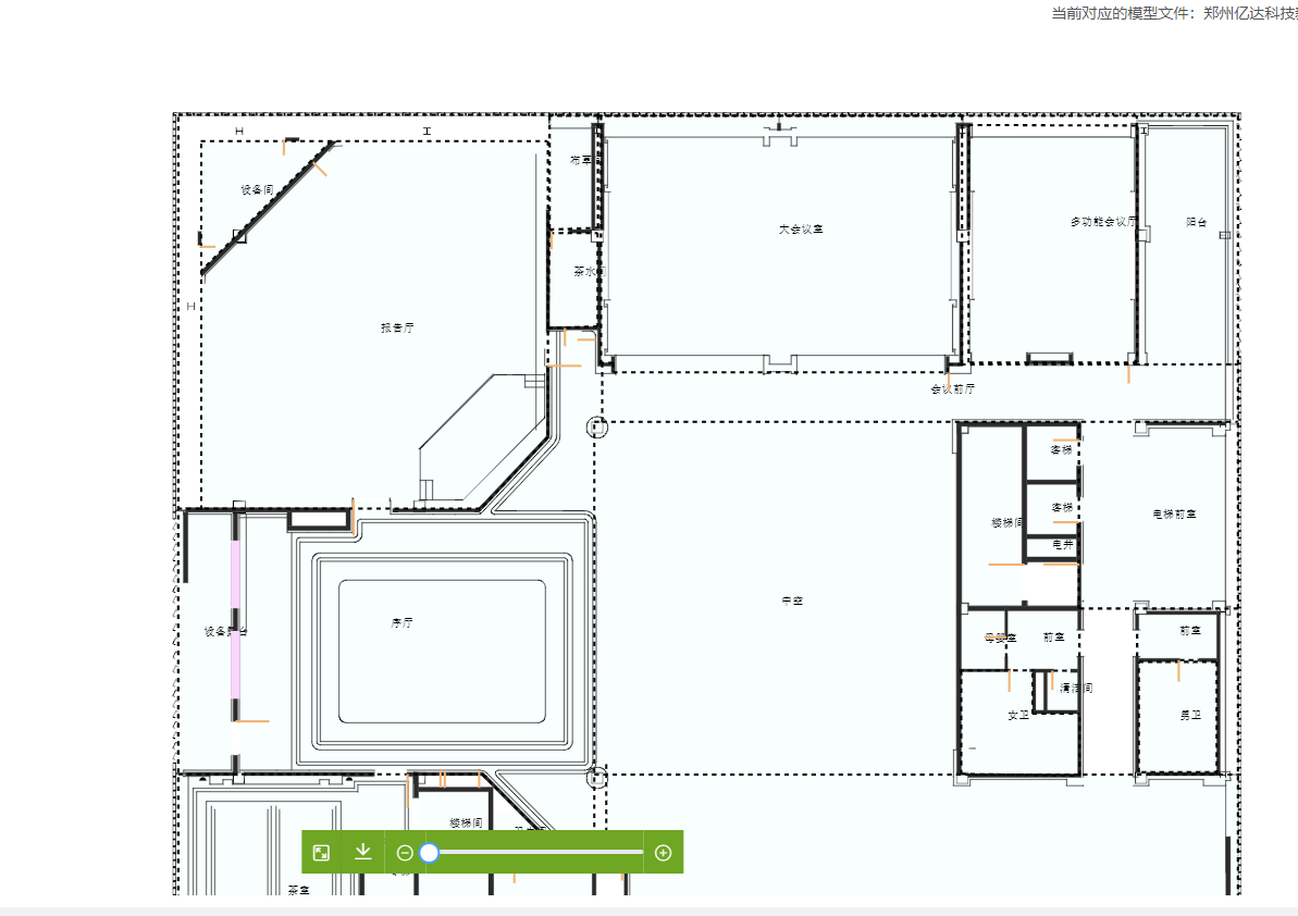
虚拟墙在计算业务空间之间的关系的问题
虚拟墙的应用
虚拟墙是人为根据实际的业务场景需求而建立的墙, 如图所示: 虚拟墙跟实体墙一样, 有分隔元空间的作用
问题1 -- 模型画的不规范
如图所示, 红色箭头锁指的四段虚拟墙实则是一段虚拟墙, 有两部分跟真实的墙重叠在了一起
如果按照建模规范, 虚拟墙体不能跟真实墙体重叠
问题2 -- 目前不能使用 "开虚拟门" 的方式来处理虚拟墙